If you’re building a new home or commercial space and looking for an architect in Motihari who understands the local construction style, plot patterns and town–semi-rural mix, Houseyog is here to help.
Motihari is expanding rapidly around Chandmari Road, Banjaria, Raxaul Road, Balua Chowk, Nariyal Ganj, MS College Road, Belbanwa and Pakri Chowk, where families are constructing G+1/G+2 houses, duplex homes, rental units, coaching centres, marriage halls and roadside commercial spaces.
Every area has its own construction style —
At Houseyog, we design custom, Vastu-aligned, budget-friendly homes, marriage halls and other commercial properties that work seamlessly for both town plots and semi-rural layouts.
Houseyog offers complete architectural services in Motihari, covering residential, commercial and semi-rural planning needs.
Talk to our architect today: +91 75960 58808 or Explore Our House Designs


Construction in East Champaran often involves plots of 1000–2500 sq ft, G+1/G+2 structures, room-for-residential and rental layouts, and practical Vastu arrangements. Our designs are created keeping these patterns in mind.
We provide complete home design solutions, including:
Homeowners in Chandmari Road, Nariyal Ganj and Banjaria often prefer G+1 layouts with rental rooms or duplex-style homes for growing families. We optimise your plot to ensure proper ventilation, privacy and structural stability.
Our design workflow is remote-friendly, with coordination through WhatsApp, calls and shared drawings. Site visits are available on request.
Want to estimate your construction budget? Try our Construction Cost Calculator for quick, accurate cost estimates based on your Motihari or Bihar building requirements. You can also explore our complete Construction Cost Guide Series for Bihar and India.

Motihari has a rising demand for marriage halls, banquet halls, coaching institutes, hostels, retail shops, godowns, school buildings and roadside commercial complexes. Houseyog offers specialised architectural planning for these spaces.
We plan:
Marriage halls near Raxaul Road, Balua Chowk & Banjaria demand smart space utilisation — and we design layouts that are functional, profitable and aesthetically appealing.
Ideal for:
Explore industrial shed design
Best for property developers, shop owners and small-business setups near highways and market areas.
We plan:
Whether it’s a roadside commercial building, duplex home, or a banquet hall, our designs ensure practical use of every square foot.
Families and business owners across Motihari trust Houseyog because we focus on clarity, affordability and local construction suitability.
We consider rental rooms, attached shops, future expansion and family needs.
We refine the layout until it works perfectly for your lifestyle.
Our detailed drawings reduce site confusion and save construction cost.
We consider Motihari’s climate, soil type, sun direction and groundwater levels.
We create drawings that local masons can easily understand and follow.
Your home becomes practical, safe, well-ventilated, and cost-effective.
Apart from design, Houseyog supports families during construction — especially in:
Our construction services include:
If you're searching for an architect in Motihari for house construction, our team provides complete end-to-end support.


We offer architectural services in:
From compact town plots to large semi-rural spaces, we design homes that fit your budget and lifestyle.
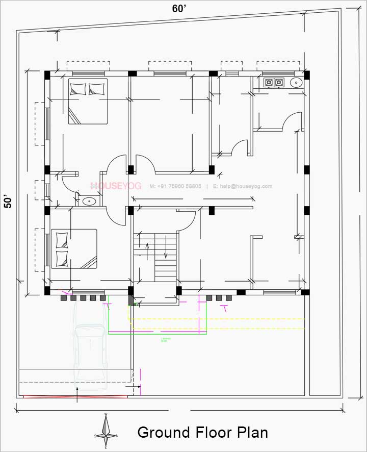
A few popular layouts you can explore:
Q1. What is the cost of hiring an architect in Motihari?
Architectural planning in Motihari starts at ₹4,999, depending on plot size and drawing requirements.
Q2. Do you provide Vastu-based house plans?
Yes. All our layouts can be made fully Vastu-aligned with correct room placement and ventilation.
Q3. Do you design marriage halls or commercial buildings?
Absolutely. We design banquet halls, coaching centres, shops, school buildings and commercial layouts.
Q4. Do you provide supervision during construction?
Yes. We offer optional site visits and on-call support for contractor coordination.
Q5. Do you also handle home construction?
Yes. Our turnkey construction service covers planning, BOQ, supervision and full execution.
Whether you're planning a duplex, a modern G+1 home, a marriage hall or a commercial building, Houseyog provides clear, customised and reliable architectural guidance for every step.