
Layout
33 x 50 sq ft
Plot size
1650 sq ft
Build area
3300 sq ft
Facing
South
Floors
2
Bedrooms
5
Bathrooms
5
Car Parking
Yes
Open Terrace
No
Lift
No
Approx build cost
3960000
This beautifully planned 33x50 south-facing duplex house design offers a modern elevation, spacious room layout, and premium outdoor spaces. Designed as a two-storey home with all essential amenities, it features open-plan living, stylish balcony spaces, a covered entrance, and a contemporary façade ideal for today’s lifestyle needs.
The ground floor of this 33x50 south-facing duplex house design is intelligently planned to offer maximum comfort and functionality. It features a spacious Master Bedroom Suite (14x13 ft) with an attached toilet, along with a well-sized Bedroom (10x12 ft) and a common toilet (7x4 ft) for everyday convenience. The layout includes an inviting living area, connected dining space, and a dedicated puja space thoughtfully positioned for privacy.
The open kitchen (12x10 ft) enhances interaction and ventilation, while the drawing hall (12x14 ft) creates the perfect formal seating area for guests. At the entrance, a stylish sit-out (12x7 ft) opens to a lush front garden (22x17 ft), creating a refreshing outdoor zone. The plan also includes a generous parking area (21x23 ft) inside the boundary, making it ideal for modern families.
This floor is designed to offer smooth circulation, abundant natural light, and a perfect blend of private and social spaces—ideal for a modern south-facing home design on a 33x50 plot.
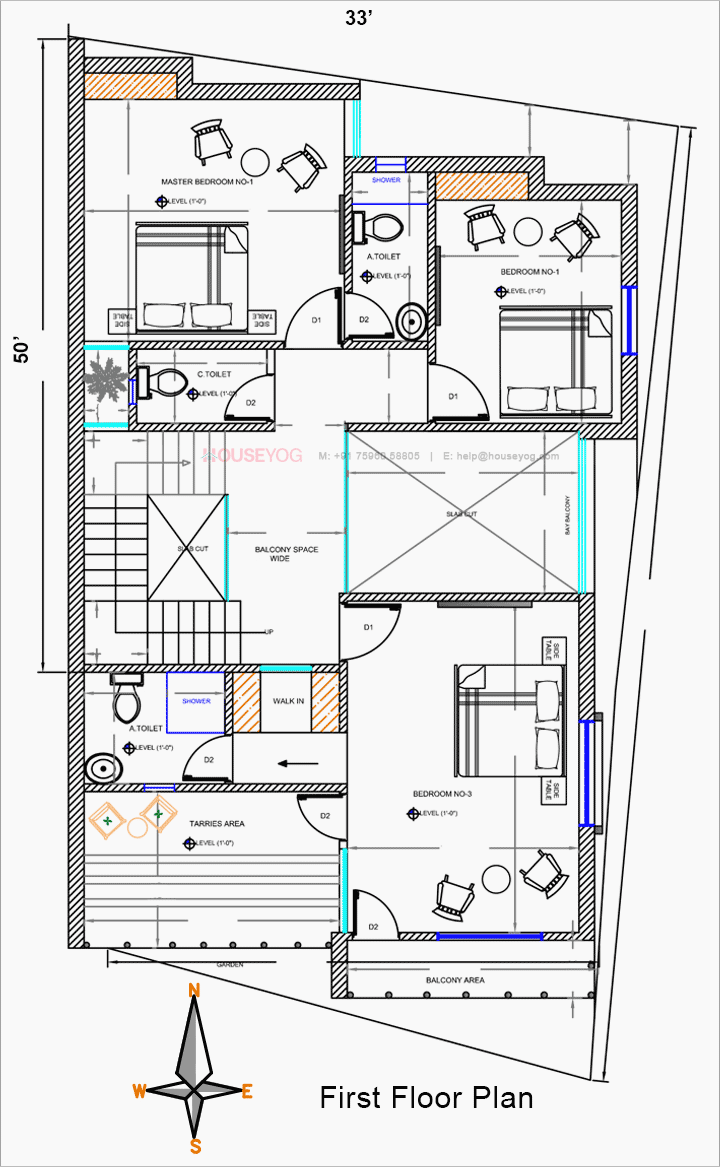
The first floor of this two-storey duplex house adds more living comfort with three well-planned bedrooms, offering ample privacy for family members. It includes three toilets (two attached and one common) ensuring convenience for both residents and guests. The floor opens to a beautiful front balcony, providing relaxing outdoor space with a premium elevation view.
An open terrace enhances the usability of the home, making it perfect for evening gatherings, gardening, or future expansion. The layout ensures privacy, ventilation, and functional zoning—making it ideal for growing families seeking a practical yet modern duplex design.
This duplex features a striking modern elevation with clean lines, geometric forms, and a seamless blend of textures. The façade showcases premium elements like vertical fins, wooden panelling, pergola shading, wall cladding, and a beautifully extended balcony with a glass railing. The greenery accents add freshness, while the soft evening lighting highlights the architectural depth and contemporary styling.
The combination of white, grey, and wooden tones creates a sophisticated look ideal for today’s premium 33x50 house designs. The boundary wall and gate design complement the home’s aesthetic, giving the property a complete, luxurious appeal.
Ground Floor plan features and amenities
A well-planned ground floor with a master bedroom suite, additional bedroom, open kitchen, spacious living–dining area, puja space, drawing hall, front sit-out, garden, and covered parking.
Bedroom
2
Hall
Yes
Kitchen
1
Attached Bathroom
1
Common Bathroom
1
Study
No
Temple
Yes
Balcony
1
Utility space
Yes
Swimming pool
No
Garden
Yes
Car Parking
Yes
First Floor plan features and amenities
A luxurious first floor featuring three bedrooms, three toilets, a stylish front balcony, and an airy open terrace for family relaxation and outdoor activities.
Bedroom
3
Hall
Yes
Attached Bathroom
2
Common Bathroom
1
Study
No
Temple
No
Balcony
2
Utility space
Yes
Swimming pool
No
Garden
Yes
Car Parking
No
Design style: Contemporary, Duplex, Farmhouse, Luxury, Modern
Last updated on: 18 Nov 2025
Design Code: HP1086
This house plan and design can be fully customized to meet your plot size and functional requirements. If you liked this plan and need cosmetic changes, then please tell us about your desired changes and we’ll help you get it right at surprisingly affordable rates.
Call us on 75960 58808 and talk to our experts now.
All house design plans and packages includes free customization and changes.
Order this plan now, and get it modified without paying any customization charges.
14100
House plan drawing
Building elevation design
--
--
--
--
--
--
Most Popular
22700
House plan drawing
Building elevation design
Structural drawing
Working drawing
--
--
--
--
31300
House plan drawing
Building elevation design
Structural drawing
Working drawing
Drainage drawing
Electrical drawing
Plumbing drawing
--
How do I get started?
Getting started is pretty easy and straight forward.
Browse through the huge collection of house plans and design and select a design that suits your requirements, and place the order. Or you can directly order customize house plan and home designing services. And if you’re still unsure, you can reach out to us with your queries by submitting this simple enquiry form.
What is included in the house plans?
House plans and design consists of complete architectural drawings and designs which is required to construct your house your way. Depending on the package and add-on service you choose while placing the order, it may consist of house plan with furniture layout, building front elevation design in 3D, structural drawing, functional drawing, drainage and electrical drawing and so on.
You can also request a free sample drawing set to look at the various architectural drawings and designs that are included in complete house plan and design.
How does the customization work?
Any design you select can be customized and changed, as per your requirements as long as the plot size, layout and orientation are same. Customization is limited to minor adjustments, without altering the structure and orientation of the design.
If you feel you require major changes, then ordering a fully customized house plan and design will make more sense.
What if I need some changes in building elevation as well?
You can ask for minor adjustments here and there and we can make those changes as needed.
How long does it take to deliver the completed house plan set?
Time to delivery may vary depending on the package and add-on services you have selected, and kind of changes and modifications you want us to make in the house plan. But in general, it can be completed within 2 -2 weeks. Timely feedback and prompt communication certainly help us deliver the project faster.
How do you deliver the final house plan and designs?
Standard mode of delivery is through email or other suitable digital platform. But you can always request physical printed copies through courier or speed post by paying nominal postage and handling fees of Rs. 1150 only.
Do you offer plan approval services?
No. You have to apply on your own for approval and sanction. But, if there is any regulatory remark for the main house plan drawing, then we may help you overcome that.
Do you follow building codes when designing house plans?
Different cities and states may have different building codes and guidelines. We take good care of standard process, but if your local states or municipality have any specific building code, you should share that with us, and we will keep that in mind while designing or customizing a pre-built house plan and design.
Do you offer site visit and supervision services?
We do not offer site visit and site supervision services. But, we may help you connect you to independent architects and site supervisors in select cities.
Do you take contract for building construction?
No. We are an online architectural and interior designing service company and therefore we can help you with house plan, building elevation and interior designing services. But, we may help you connect with independent building contractors near you in select cities.
What is your refund policy?
As you know we offer various services, and the moment an order is placed, we initiate work on it and therefore, refunding and cancellation of order is not possible. But, we will work closely with you and ensure that you are happy and satisfied with our work and deliverables.
Why work with houseyog?
At houseyog, we offer end to end architectural and interior designing services, fast, easily and at affordable rates. You get the most competent prices that can’t be matched by a local architectural firm near you. We offer the same level of attention and personalization that you would expect from a local architectural firm. And above all, we have some of the best and smartest people on board who have years of experience in designing the best of residential and commercial spaces.
Needless to say, that we also have a super responsive support team that breathe house design.
If you have any other question or comment, feel free to write us: help@houseyog.com or call us on +917596058808
Are you ready to start your project? Click here to get started now!