30x40 West Facing 3BHK House Plan with 3 Bathrooms & Attached Dressers (1200 Sq Ft) - FP1281

Download this 30 x 40 West-facing 3BHK house plan PDF with room dimensions, layout details, and plot orientation.

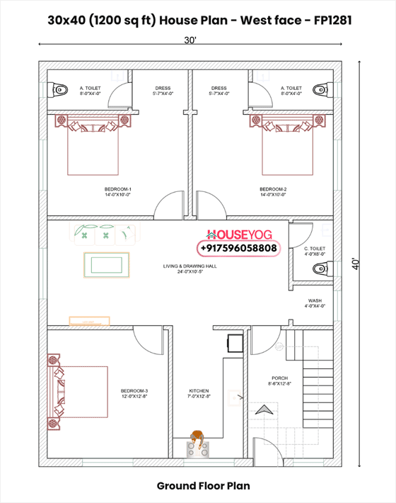
Looking for a well-planned 30x40 west facing 3BHK house plan with proper privacy and modern comfort? This 1200 sq ft layout is designed to give you exactly that.

The plan features 3 spacious bedrooms, out of which 2 bedrooms come with attached bathrooms and dresser space, making it ideal for families who prefer privacy and convenience. In addition, there is 1 common bathroom, bringing the total to 3 baths, best suited for daily use as well as guests.

The kitchen is placed at the front, allowing better ventilation and easy access, while the large hall serves as a comfortable family living space. The layout is simple, functional, and easy to execute on site.

A unique feature is the square-style staircase with a dedicated passage, which helps in smooth circulation and also supports future floor expansion if needed.

This design is a great fit for modern homes in small towns and cities, especially where space planning and comfort both matter.

You can also explore a similar layout here: 31x38 House Plan West Facing – 3BHK Single Floor with Parking

Need changes? We can customise this plan as per your requirements at a nominal fee. Get 3D elevation, structural drawings, working drawings & MEP services at affordable rates. Call/WhatsApp: 75960 58808.

30x40 West Facing 3BHK House Plan with 3 Bathrooms & Attached Dressers (1200 Sq Ft)

30 x 40 House Plan PDF - Download Free!

Want to save or print this house plan (West facing, 3 BHK, 1200 sq ft)?
Click here to download the PDF for free now

What's included in this house plan PDF

  • Floor plan with room measurements
  • Room-wise layout and circulation
  • Plot size and facing orientation
  • Printable scale drawing (PDF format)

Key Features of This 30 x 40 Residential Plan

  • Plot Layout
    30 x 40 ft

  • Built-up Area
    1200 sq ft

  • Facing
    West

  • Floors
    1

  • Bedrooms
    3

  • Bathrooms
    3

  • Car Parking
    No

  • Lift
    No

Want to Edit This Plan or Add 3D Elevation, Structure and MEP Drawings?

Like this plan but want some edits and adjustments? Or maybe you'd love a 3D front elevation that matches your taste? We are ready to help you with:

  • Custom layout changes and adjustments
  • 3D Front Elevation designs
  • Structural & working drawings
  • Electrical, plumbing & drainage drawings
  • Interior design concepts in 2D and 3D
  • Marriage hall planning and design
  • Construction supervision and on-site support
  • Turnkey construction services in select cities (Bihar and Jharkhand)

Call or Whatsapp us now at +91 75960 58808 or +91 75960 58805 for a Free Consultation today!

Building your dream home starts with a solid plan. Download this expertly crafted 30 x 40 ft house plan for West-facing, 1200 sqft plot today. And if you'd like to go for a custom house design services, our team at Houseyog is just a call away. Happy home building!

Similar House Plans and Layouts You'll Love

30x45 South Facing 3BHK Village House Plan (1350 Sq Ft) with Drawing Room & Puja Space

30x45 South Facing 3BHK Village House Plan (1350 Sq Ft) with Drawing Room & Puja Space

Beautifully designed 30x45 House Plan for 1350 sq. ft. plot - South facing with 2 bedrooms and car parking space

Layout: 30 X 45 ft

Built-up Area: 1350 sqft

View Full Plan Details

25x41 East Facing 2BHK House Plan with 2 Kitchens & 3 Bathrooms (Guest Room + Parking)

25x41 East Facing 2BHK House Plan with 2 Kitchens & 3 Bathrooms (Guest Room + Parking)

Beautifully designed 25x41 House Plan for 1025 sq. ft. plot - East facing with 2 bedrooms and car parking space

Layout: 25 X 41 ft

Built-up Area: 1025 sqft

View Full Plan Details

25x35 East Facing House Plan – 3BHK Compact Layout with Front Stairs (875 sq ft)

25x35 East Facing House Plan – 3BHK Compact Layout with Front Stairs (875 sq ft)

Beautifully designed 25x35 House Plan for 875 sq. ft. plot - East facing with 3 bedrooms

Layout: 25 X 35 ft

Built-up Area: 875 sqft

View Full Plan Details

FAQ About This 30x40 House Plan

1. Is a 30x40 ft plot suitable for a 3 BHK house?

Yes. A 30x40 ft (1200 sq ft) plot is suitable for a 3 BHK home when planned efficiently. This layout ensures functional space utilisation along with good room distribution.

2. Is this house plan suitable for a West-facing plot?

Yes, this design works well for a West-facing plot. If you want strict Vastu compliance, the plan can be customised easily to match your requirements.

3. Can this 3 BHK house plan be customised?

Absolutely. We can modify room sizes, layout flow, entrance position, and internal space planning as per your needs. Customisation support is available for all plans listed on Houseyog.

4. Does this plan support future expansion to more floors?

Yes. Since this is a single-storey layout, it can be converted into a G+1 structure later with proper structural planning.

5. Is car parking available in this house plan?

This plan does not include dedicated parking, but we can modify the layout to include one if required.

6. How many bathrooms are available in this house plan?

This home includes 3 bathrooms, designed for family comfort and daily convenience.

7. Can I download the free PDF of this house plan?

Yes, you can download the FREE PDF of this 3 BHK 1200 sq ft layout using the download link provided above.