32x40 East Facing House Plan - 2 BHK with parking on 1280 Sqft Plot - FP1035

Download this 32 x 40 East-facing 2BHK house plan PDF with room dimensions, layout details, and plot orientation.

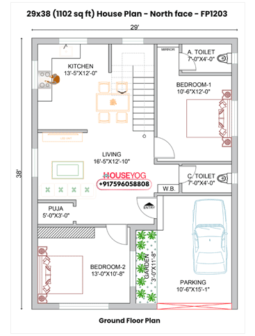
Explore this smart and spacious 32x40 house plan, designed for modern village and semi-urban homes. Built on a 1280 Sqft east-facing plot, this single-floor plan features 2 bedrooms, 2 bathrooms (1 attached, 1 common), and a big rectangular hall ideal for family gatherings.

It offers a dedicated dining area, a separate spacious kitchen, and a well-thought-out external staircase—perfect for future rental construction. With ample car and bike parking space, and a 3 ft wide lawn/gardening area, this layout balances functionality and comfort.

This 32x40 house plan east facing is ideal for those building in Muzaffarpur, or other cities across Bihar and Jharkhand, including Patna, Darbhanga, Ranchi, and Samastipur. Whether you're planning a home in the city or your native village, this 32x40 makan ka naksha offers a practical layout for modern living.

Perfect for small families wanting more space without adding floors. You also get the benefit of online architect services to customize it as per your needs.

Want to discuss your 32x40 house plan? Call us now at +91 75960 58808.

32x40 East Facing House Plan - 2 BHK with parking on 1280 Sqft Plot

32 x 40 House Plan PDF - Download Free!

Want to save or print this house plan (East facing, 2 BHK, 1280 sq ft)?
Click here to download the PDF for free now

What's included in this house plan PDF

  • Floor plan with room measurements
  • Room-wise layout and circulation
  • Plot size and facing orientation
  • Printable scale drawing (PDF format)

Key Features of This 32 x 40 Residential Plan

  • Plot Layout
    32 x 40 ft

  • Built-up Area
    1280 sq ft

  • Facing
    East

  • Floors
    1

  • Bedrooms
    2

  • Bathrooms
    2

  • Car Parking
    Yes

  • Lift
    No

Want to Edit This Plan or Add 3D Elevation, Structure and MEP Drawings?

Like this plan but want some edits and adjustments? Or maybe you'd love a 3D front elevation that matches your taste? We are ready to help you with:

  • Custom layout changes and adjustments
  • 3D Front Elevation designs
  • Structural & working drawings
  • Electrical, plumbing & drainage drawings
  • Interior design concepts in 2D and 3D
  • Marriage hall planning and design
  • Construction supervision and on-site support
  • Turnkey construction services in select cities (Bihar and Jharkhand)

Call or Whatsapp us now at +91 75960 58808 or +91 75960 58805 for a Free Consultation today!

Building your dream home starts with a solid plan. Download this expertly crafted 32 x 40 ft house plan for East-facing, 1280 sqft plot today. And if you'd like to go for a custom house design services, our team at Houseyog is just a call away. Happy home building!

Similar House Plans and Layouts You'll Love

30x40 East Facing 2BHK House Plan with Shop (1200 Sq Ft)

30x40 East Facing 2BHK House Plan with Shop (1200 Sq Ft)

Beautifully designed 30x40 House Plan for 1200 sq. ft. plot - East facing with 2 bedrooms

Layout: 30 X 40 ft

Built-up Area: 1200 sqft

View Full Plan Details

30x40 East Facing 3 BHK House Plan with Open Porch - Village Style Layout (1200 Sq Ft)

30x40 East Facing 3 BHK House Plan with Open Porch - Village Style Layout (1200 Sq Ft)

Beautifully designed 30x40 House Plan for 1200 sq. ft. plot - East facing with 2 bedrooms and car parking space

Layout: 30 X 40 ft

Built-up Area: 1200 sqft

View Full Plan Details

30x40 West Facing 3BHK House Plan with 3 Bathrooms & Attached Dressers (1200 Sq Ft)

30x40 West Facing 3BHK House Plan with 3 Bathrooms & Attached Dressers (1200 Sq Ft)

Beautifully designed 30x40 House Plan for 1200 sq. ft. plot - West facing with 3 bedrooms

Layout: 30 X 40 ft

Built-up Area: 1200 sqft

View Full Plan Details

FAQ About This 32x40 House Plan

1. Is a 32x40 ft plot suitable for a 2 BHK house?

Yes. A 32x40 ft (1280 sq ft) plot is suitable for a 2 BHK home when planned efficiently. This layout ensures functional space utilisation along with good room distribution.

2. Is this house plan suitable for a East-facing plot?

Yes, this design works well for a East-facing plot. If you want strict Vastu compliance, the plan can be customised easily to match your requirements.

3. Can this 2 BHK house plan be customised?

Absolutely. We can modify room sizes, layout flow, entrance position, and internal space planning as per your needs. Customisation support is available for all plans listed on Houseyog.

4. Does this plan support future expansion to more floors?

Yes. Since this is a single-storey layout, it can be converted into a G+1 structure later with proper structural planning.

5. Is car parking available in this house plan?

Yes, the plan includes provision for car parking, making it convenient for families with vehicles.

6. How many bathrooms are available in this house plan?

This home includes 2 bathrooms, designed for family comfort and daily convenience.

7. Can I download the free PDF of this house plan?

Yes, you can download the FREE PDF of this 2 BHK 1280 sq ft layout using the download link provided above.