30x35 West Facing 3BHK House Plan (1050 Sq Ft) - Modern Ground Floor Layout - FP1254

Download this 30 x 35 West-facing 3BHK house plan PDF with room dimensions, layout details, and plot orientation.

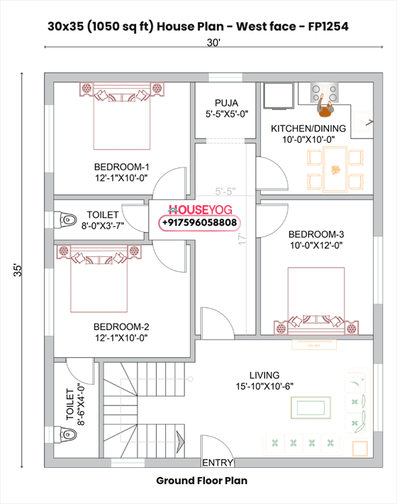
Planning to build on a 30x35 feet (1050 sq ft) plot? This west-facing 3BHK house plan is designed for efficient urban living without compromising comfort.

Created for a client in Danapur, Bihar, this single-floor layout makes smart use of space while maintaining clear movement flow. The front opens into a spacious living area, giving the house an open and welcoming feel. Three well-sized bedrooms (approx. 12x10 ft) are thoughtfully positioned for privacy. The master bedroom at the front includes an attached bathroom, while a second common bathroom serves the remaining rooms.

The kitchen is practical and connected to a designated dining area, making daily routines convenient. The staircase is placed at the front, allowing flexibility for future vertical expansion if required.

This 1050 sq ft 3BHK layout is ideal for small city plots where every square foot matters. You can download the PDF house plan or Call/WhatsApp: 75960 58808 for customised floor plans, 3D elevation design, structural drawings, working drawings, and MEP layouts at affordable rates. If you are planning to build in Bihar, you may also connect with our team of Architect in Patna for project-specific guidance.

30x35 West Facing 3BHK House Plan (1050 Sq Ft) - Modern Ground Floor Layout

30 x 35 House Plan PDF - Download Free!

Want to save or print this house plan (West facing, 3 BHK, 1050 sq ft)?
Click here to download the PDF for free now

What's included in this house plan PDF

  • Floor plan with room measurements
  • Room-wise layout and circulation
  • Plot size and facing orientation
  • Printable scale drawing (PDF format)

Key Features of This 30 x 35 Residential Plan

  • Plot Layout
    30 x 35 ft

  • Built-up Area
    1050 sq ft

  • Facing
    West

  • Floors
    1

  • Bedrooms
    3

  • Bathrooms
    2

  • Car Parking
    No

  • Lift
    No

Want to Edit This Plan or Add 3D Elevation, Structure and MEP Drawings?

Like this plan but want some edits and adjustments? Or maybe you'd love a 3D front elevation that matches your taste? We are ready to help you with:

  • Custom layout changes and adjustments
  • 3D Front Elevation designs
  • Structural & working drawings
  • Electrical, plumbing & drainage drawings
  • Interior design concepts in 2D and 3D
  • Marriage hall planning and design
  • Construction supervision and on-site support
  • Turnkey construction services in select cities (Bihar and Jharkhand)

Call or Whatsapp us now at +91 75960 58808 or +91 75960 58805 for a Free Consultation today!

Building your dream home starts with a solid plan. Download this expertly crafted 30 x 35 ft house plan for West-facing, 1050 sqft plot today. And if you'd like to go for a custom house design services, our team at Houseyog is just a call away. Happy home building!

Similar House Plans and Layouts You'll Love

30x40 West Facing 3BHK House Plan with 3 Bathrooms & Attached Dressers (1200 Sq Ft)

30x40 West Facing 3BHK House Plan with 3 Bathrooms & Attached Dressers (1200 Sq Ft)

Beautifully designed 30x40 House Plan for 1200 sq. ft. plot - West facing with 3 bedrooms

Layout: 30 X 40 ft

Built-up Area: 1200 sqft

View Full Plan Details

30x40 West Facing 2BHK House Plan with Verandah & Separate Dining (1200 Sq Ft)

30x40 West Facing 2BHK House Plan with Verandah & Separate Dining (1200 Sq Ft)

Beautifully designed 30x40 House Plan for 1200 sq. ft. plot - West facing with 2 bedrooms

Layout: 30 X 40 ft

Built-up Area: 1200 sqft

View Full Plan Details

30x35 North Facing 3BHK House Plan (1050 Sq Ft) - 4 Room Single Floor Layout

30x35 North Facing 3BHK House Plan (1050 Sq Ft) - 4 Room Single Floor Layout

Beautifully designed 30x35 House Plan for 1050 sq. ft. plot - North facing with 3 bedrooms

Layout: 30 X 35 ft

Built-up Area: 1050 sqft

View Full Plan Details

FAQ About This 30x35 House Plan

1. Is a 30x35 ft plot suitable for a 3 BHK house?

Yes. A 30x35 ft (1050 sq ft) plot is suitable for a 3 BHK home when planned efficiently. This layout ensures functional space utilisation along with good room distribution.

2. Is this house plan suitable for a West-facing plot?

Yes, this design works well for a West-facing plot. If you want strict Vastu compliance, the plan can be customised easily to match your requirements.

3. Can this 3 BHK house plan be customised?

Absolutely. We can modify room sizes, layout flow, entrance position, and internal space planning as per your needs. Customisation support is available for all plans listed on Houseyog.

4. Does this plan support future expansion to more floors?

Yes. Since this is a single-storey layout, it can be converted into a G+1 structure later with proper structural planning.

5. Is car parking available in this house plan?

This plan does not include dedicated parking, but we can modify the layout to include one if required.

6. How many bathrooms are available in this house plan?

This home includes 2 bathrooms, designed for family comfort and daily convenience.

7. Can I download the free PDF of this house plan?

Yes, you can download the FREE PDF of this 3 BHK 1050 sq ft layout using the download link provided above.