29x38 House Plan North Facing – 2BHK Home Design with Parking & Garden (1102 Sq Ft Layout) - FP1203

Download this 29 x 38 North-facing 2BHK house plan PDF with room dimensions, layout details, and plot orientation.

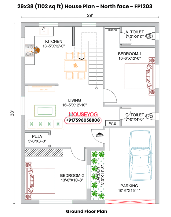
This 29x38 house plan (1102 sq ft) is a smartly designed North-facing 2BHK home layout, created for a client in Dhanbad, Jharkhand. Perfect for small families looking for comfort, open space and future expansion possibilities, this single-storey home plan includes two spacious bedrooms, one with an attached bathroom, and an additional common bath for easy access.

The design features a large living hall with a dedicated puja space, a well-planned kitchen and dining area, and a duplex-style staircase positioned at the back for privacy and future first-floor construction. One of the major highlights of this plan is the generous car parking space and a small garden area at the front, ideal for semi-urban and city lifestyles where open green zones are highly valued.

The entry from the parking area ensures convenience, while the overall layout maintains excellent ventilation and circulation. This plan is suitable for anyone searching for a 1102 sq ft 2BHK house plan designed by professional architects.

Download the FREE PDF layout, or contact us at: 75960 58808 for customised floor plans, 3D elevations, structural, electrical, plumbing, drainage designs, marriage hall planning or industrial shed design or check our Architect Services in Dhanbad.

29x38 House Plan North Facing – 2BHK Home Design with Parking & Garden (1102 Sq Ft Layout)

29 x 38 House Plan PDF - Download Free!

Want to save or print this house plan (North facing, 2 BHK, 1102 sq ft)?
Click here to download the PDF for free now

What's included in this house plan PDF

  • Floor plan with room measurements
  • Room-wise layout and circulation
  • Plot size and facing orientation
  • Printable scale drawing (PDF format)

Key Features of This 29 x 38 Residential Plan

  • Plot Layout
    29 x 38 ft

  • Built-up Area
    1102 sq ft

  • Facing
    North

  • Floors
    1

  • Bedrooms
    2

  • Bathrooms
    2

  • Car Parking
    Yes

  • Lift
    No

Want to Edit This Plan or Add 3D Elevation, Structure and MEP Drawings?

Like this plan but want some edits and adjustments? Or maybe you'd love a 3D front elevation that matches your taste? We are ready to help you with:

  • Custom layout changes and adjustments
  • 3D Front Elevation designs
  • Structural & working drawings
  • Electrical, plumbing & drainage drawings
  • Interior design concepts in 2D and 3D
  • Marriage hall planning and design
  • Construction supervision and on-site support
  • Turnkey construction services in select cities (Bihar and Jharkhand)

Call or Whatsapp us now at +91 75960 58808 or +91 75960 58805 for a Free Consultation today!

Building your dream home starts with a solid plan. Download this expertly crafted 29 x 38 ft house plan for North-facing, 1102 sqft plot today. And if you'd like to go for a custom house design services, our team at Houseyog is just a call away. Happy home building!

Similar House Plans and Layouts You'll Love

30x40 West Facing 3BHK House Plan with 3 Bathrooms & Attached Dressers (1200 Sq Ft)

30x40 West Facing 3BHK House Plan with 3 Bathrooms & Attached Dressers (1200 Sq Ft)

Beautifully designed 30x40 House Plan for 1200 sq. ft. plot - West facing with 3 bedrooms

Layout: 30 X 40 ft

Built-up Area: 1200 sqft

View Full Plan Details

30x40 West Facing 2BHK House Plan with Verandah & Separate Dining (1200 Sq Ft)

30x40 West Facing 2BHK House Plan with Verandah & Separate Dining (1200 Sq Ft)

Beautifully designed 30x40 House Plan for 1200 sq. ft. plot - West facing with 2 bedrooms

Layout: 30 X 40 ft

Built-up Area: 1200 sqft

View Full Plan Details

30x35 North Facing 3BHK House Plan (1050 Sq Ft) - 4 Room Single Floor Layout

30x35 North Facing 3BHK House Plan (1050 Sq Ft) - 4 Room Single Floor Layout

Beautifully designed 30x35 House Plan for 1050 sq. ft. plot - North facing with 3 bedrooms

Layout: 30 X 35 ft

Built-up Area: 1050 sqft

View Full Plan Details

FAQ About This 29x38 House Plan

1. Is a 29x38 ft plot suitable for a 2 BHK house?

Yes. A 29x38 ft (1102 sq ft) plot is suitable for a 2 BHK home when planned efficiently. This layout ensures functional space utilisation along with good room distribution.

2. Is this house plan suitable for a North-facing plot?

Yes, this design works well for a North-facing plot. If you want strict Vastu compliance, the plan can be customised easily to match your requirements.

3. Can this 2 BHK house plan be customised?

Absolutely. We can modify room sizes, layout flow, entrance position, and internal space planning as per your needs. Customisation support is available for all plans listed on Houseyog.

4. Does this plan support future expansion to more floors?

Yes. Since this is a single-storey layout, it can be converted into a G+1 structure later with proper structural planning.

5. Is car parking available in this house plan?

Yes, the plan includes provision for car parking, making it convenient for families with vehicles.

6. How many bathrooms are available in this house plan?

This home includes 2 bathrooms, designed for family comfort and daily convenience.

7. Can I download the free PDF of this house plan?

Yes, you can download the FREE PDF of this 2 BHK 1102 sq ft layout using the download link provided above.