28x54 North Facing 3BHK Single Floor House Plan (1512 sq ft) - Spacious Indian Home Layout - FP1197

Download this 28 x 54 North-facing 3BHK house plan PDF with room dimensions, layout details, and plot orientation.

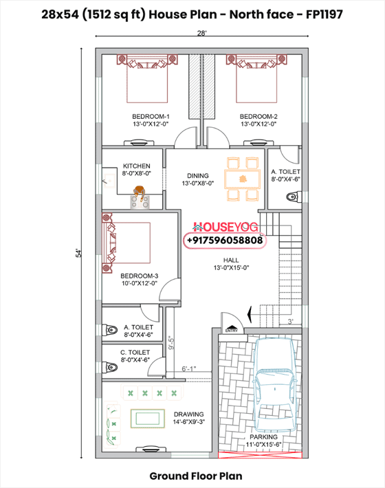
This 28x54 north-facing 3BHK single-storey house plan (1512 sq ft) is a spacious, practical, and family-friendly layout designed for a client in Saharsa, Bihar. The plan offers a well-balanced combination of comfort, privacy, and functional movement—ideal for modern Indian families looking for a smart single-floor design.

The layout features three large bedrooms, out of which two come with attached bathrooms, ensuring privacy for parents and senior family members. The home also includes a well-placed common bathroom for guests and daily convenience. The 13x15 ft living room and 13x8 ft dining space create an open, welcoming ambience, perfect for family gatherings and everyday comfort.

A separate 14.6x9 ft drawing room adds elegance and extra utility, best for hosting guests while keeping the inner living zone private. The 8x8 ft kitchen is compact yet functional, with excellent accessibility to the dining space. The plan also includes an 11x15.6 ft parking area, suitable for mid-size vehicles.

Smartly positioned U-shaped internal stairs along the wall create additional usable space and allow easy future expansion to the first floor.

Explore more and download Indian house plans for inspiration and to build your house.

For personalised floor plans, 3D elevation, structural, plumbing, MEP, marriage hall design or industrial shed design services, call 75960 58808.

28x54 North Facing 3BHK Single Floor House Plan (1512 sq ft) - Spacious Indian Home Layout

28 x 54 House Plan PDF - Download Free!

Want to save or print this house plan (North facing, 3 BHK, 1512 sq ft)?
Click here to download the PDF for free now

What's included in this house plan PDF

  • Floor plan with room measurements
  • Room-wise layout and circulation
  • Plot size and facing orientation
  • Printable scale drawing (PDF format)

Key Features of This 28 x 54 Residential Plan

  • Plot Layout
    28 x 54 ft

  • Built-up Area
    1512 sq ft

  • Facing
    North

  • Floors
    1

  • Bedrooms
    3

  • Bathrooms
    3

  • Car Parking
    Yes

  • Lift
    No

Want to Edit This Plan or Add 3D Elevation, Structure and MEP Drawings?

Like this plan but want some edits and adjustments? Or maybe you'd love a 3D front elevation that matches your taste? We are ready to help you with:

  • Custom layout changes and adjustments
  • 3D Front Elevation designs
  • Structural & working drawings
  • Electrical, plumbing & drainage drawings
  • Interior design concepts in 2D and 3D
  • Marriage hall planning and design
  • Construction supervision and on-site support
  • Turnkey construction services in select cities (Bihar and Jharkhand)

Call or Whatsapp us now at +91 75960 58808 or +91 75960 58805 for a Free Consultation today!

Building your dream home starts with a solid plan. Download this expertly crafted 28 x 54 ft house plan for North-facing, 1512 sqft plot today. And if you'd like to go for a custom house design services, our team at Houseyog is just a call away. Happy home building!

Similar House Plans and Layouts You'll Love

30x50 North Facing 2BHK House Plan with Parking - 1500 Sq Ft Luxury Layout

30x50 North Facing 2BHK House Plan with Parking - 1500 Sq Ft Luxury Layout

Beautifully designed 30x50 House Plan for 1500 sq. ft. plot - North facing with 2 bedrooms and car parking space

Layout: 30 X 50 ft

Built-up Area: 1500 sqft

View Full Plan Details

27x54 House Plan North Facing - 4BHK Duplex Home Design (1458 Sq Ft Layout)

27x54 House Plan North Facing - 4BHK Duplex Home Design (1458 Sq Ft Layout)

Beautifully designed 27x54 House Plan for 1458 sq. ft. plot - North facing with 4 bedrooms, G+ 1 floors and car parking space

Layout: 27 X 54 ft

Built-up Area: 1458 sqft

View Full Plan Details

28x54 North Facing 3BHK Single Floor House Plan (1512 sq ft) - Spacious Indian Home Layout

28x54 North Facing 3BHK Single Floor House Plan (1512 sq ft) - Spacious Indian Home Layout

Beautifully designed 28x54 House Plan for 1512 sq. ft. plot - North facing with 3 bedrooms and car parking space

Layout: 28 X 54 ft

Built-up Area: 1512 sqft

View Full Plan Details

FAQ About This 28x54 House Plan

1. Is a 28x54 ft plot suitable for a 3 BHK house?

Yes. A 28x54 ft (1512 sq ft) plot is suitable for a 3 BHK home when planned efficiently. This layout ensures functional space utilisation along with good room distribution.

2. Is this house plan suitable for a North-facing plot?

Yes, this design works well for a North-facing plot. If you want strict Vastu compliance, the plan can be customised easily to match your requirements.

3. Can this 3 BHK house plan be customised?

Absolutely. We can modify room sizes, layout flow, entrance position, and internal space planning as per your needs. Customisation support is available for all plans listed on Houseyog.

4. Does this plan support future expansion to more floors?

Yes. Since this is a single-storey layout, it can be converted into a G+1 structure later with proper structural planning.

5. Is car parking available in this house plan?

Yes, the plan includes provision for car parking, making it convenient for families with vehicles.

6. How many bathrooms are available in this house plan?

This home includes 3 bathrooms, designed for family comfort and daily convenience.

7. Can I download the free PDF of this house plan?

Yes, you can download the FREE PDF of this 3 BHK 1512 sq ft layout using the download link provided above.