28x40 North Facing 2BHK House Plan (1120 sq ft) Single Floor Layout - FP1204

Download this 28 x 40 North-facing 2BHK house plan PDF with room dimensions, layout details, and plot orientation.

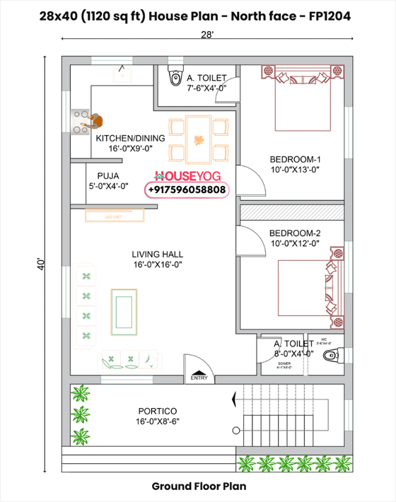
Searching for a practical and beautiful 28x40 house plan north facing for your village or semi-urban home? This thoughtfully designed 1120 sq ft single floor 2BHK layout offers spacious rooms, modern functionality, and a clean flow—ideal for families looking for a comfortable home on a medium-sized plot.

Designed for a client in Samastipur, Bihar, the plan features two large bedrooms, including one with an attached bath. The layout includes a well-sized kitchen with a dining area, a small but convenient puja room, and a large 16x16 ft living hall that naturally becomes the heart of the home. With front stairs, you can easily add a rental unit or upper floor later. The portico and open green space at the front add charm, ventilation, and everyday convenience.

At a Glance:

  • Plot size: 28x40 ft (1120 sq ft)
  • Facing: North
  • Bedrooms: 2 (1 attached bath)
  • Bathrooms: 2 (1 attached + 1 common)
  • Hall and Living area: 16x16 ft
  • Kitchen + Dining + Puja Space
  • Portico + Front Stairs for expansion
  • Ideal for village & semi-urban homes

For personalised floor plans, 3D elevation, structural, electrical, plumbing & drainage drawings, or marriage hall/industrial shed designs, call 75960 58808.

Looking for expert help locally? Explore our Architect in Samastipur, Bihar services.

28x40 North Facing 2BHK House Plan (1120 sq ft) Single Floor Layout

28 x 40 House Plan PDF - Download Free!

Want to save or print this house plan (North facing, 2 BHK, 1120 sq ft)?
Click here to download the PDF for free now

What's included in this house plan PDF

  • Floor plan with room measurements
  • Room-wise layout and circulation
  • Plot size and facing orientation
  • Printable scale drawing (PDF format)

Key Features of This 28 x 40 Residential Plan

  • Plot Layout
    28 x 40 ft

  • Built-up Area
    1120 sq ft

  • Facing
    North

  • Floors
    1

  • Bedrooms
    2

  • Bathrooms
    2

  • Car Parking
    No

  • Lift
    No

Want to Edit This Plan or Add 3D Elevation, Structure and MEP Drawings?

Like this plan but want some edits and adjustments? Or maybe you'd love a 3D front elevation that matches your taste? We are ready to help you with:

  • Custom layout changes and adjustments
  • 3D Front Elevation designs
  • Structural & working drawings
  • Electrical, plumbing & drainage drawings
  • Interior design concepts in 2D and 3D
  • Marriage hall planning and design
  • Construction supervision and on-site support
  • Turnkey construction services in select cities (Bihar and Jharkhand)

Call or Whatsapp us now at +91 75960 58808 or +91 75960 58805 for a Free Consultation today!

Building your dream home starts with a solid plan. Download this expertly crafted 28 x 40 ft house plan for North-facing, 1120 sqft plot today. And if you'd like to go for a custom house design services, our team at Houseyog is just a call away. Happy home building!

Similar House Plans and Layouts You'll Love

30x45 South Facing 3BHK Village House Plan (1350 Sq Ft) with Drawing Room & Puja Space

30x45 South Facing 3BHK Village House Plan (1350 Sq Ft) with Drawing Room & Puja Space

Beautifully designed 30x45 House Plan for 1350 sq. ft. plot - South facing with 2 bedrooms and car parking space

Layout: 30 X 45 ft

Built-up Area: 1350 sqft

View Full Plan Details

25x41 East Facing 2BHK House Plan with 2 Kitchens & 3 Bathrooms (Guest Room + Parking)

25x41 East Facing 2BHK House Plan with 2 Kitchens & 3 Bathrooms (Guest Room + Parking)

Beautifully designed 25x41 House Plan for 1025 sq. ft. plot - East facing with 2 bedrooms and car parking space

Layout: 25 X 41 ft

Built-up Area: 1025 sqft

View Full Plan Details

25x35 East Facing House Plan – 3BHK Compact Layout with Front Stairs (875 sq ft)

25x35 East Facing House Plan – 3BHK Compact Layout with Front Stairs (875 sq ft)

Beautifully designed 25x35 House Plan for 875 sq. ft. plot - East facing with 3 bedrooms

Layout: 25 X 35 ft

Built-up Area: 875 sqft

View Full Plan Details

FAQ About This 28x40 House Plan

1. Is a 28x40 ft plot suitable for a 2 BHK house?

Yes. A 28x40 ft (1120 sq ft) plot is suitable for a 2 BHK home when planned efficiently. This layout ensures functional space utilisation along with good room distribution.

2. Is this house plan suitable for a North-facing plot?

Yes, this design works well for a North-facing plot. If you want strict Vastu compliance, the plan can be customised easily to match your requirements.

3. Can this 2 BHK house plan be customised?

Absolutely. We can modify room sizes, layout flow, entrance position, and internal space planning as per your needs. Customisation support is available for all plans listed on Houseyog.

4. Does this plan support future expansion to more floors?

Yes. Since this is a single-storey layout, it can be converted into a G+1 structure later with proper structural planning.

5. Is car parking available in this house plan?

This plan does not include dedicated parking, but we can modify the layout to include one if required.

6. How many bathrooms are available in this house plan?

This home includes 2 bathrooms, designed for family comfort and daily convenience.

7. Can I download the free PDF of this house plan?

Yes, you can download the FREE PDF of this 2 BHK 1120 sq ft layout using the download link provided above.